搜索
网站首页
关于我们
关于我们
公司简介
资质荣誉
企业文化
产品中心
产品中心
高压真空负荷开关
户内高压真空断路器
户外高压真空断路器
户内、户外高压隔离开关
户内高压接地开关
六氟化硫断路器
成套系列
电容器
负荷开关
新闻资讯
新闻资讯
公司新闻
行业动态
产品应用
资料下载
联系我们
"navigation"
网站首页
关于我们
公司简介
资质荣誉
企业文化
产品中心
高压真空负荷开关
户内高压真空断路器
户外高压真空断路器
户内、户外高压隔离开关
户内高压接地开关
六氟化硫断路器
成套系列
电容器
负荷开关
新闻资讯
公司新闻
行业动态
产品应用
资料下载
联系我们
Product Center
产品中心
产品中心
首页
-
产品中心
-
户内高压接地开关
-
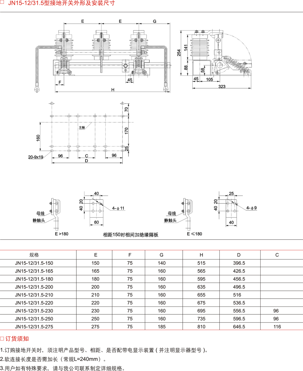
JN15-12型户内高压接地开关
JN15-12型户内高压接地开关
详细信息
返回
上一个:没有了
下一个:
JN15-24/31.5型户内高压接地开关
返回>>
相关产品
JN15-12型户内高压接地开关
JN15-24/31.5型户内高压接地开关
JN22-40.5/31.5型户内高压接地开关
JN2-40.5型户内高压接地开关
© 浙江博鑫电气有限公司
浙ICP备11013501号
XML
网站地图
微信
咨询
微信二维码
客服
热线
0577-61670277
客服热线